Vente de commerce - FILLINGES

Locaux neufs Fillinges

Prix

Prix pour la surface totale, soit 112 m2 :
2496 €
HT F.A.I /m²
279552 €
HT F.A.I
Honoraires: Nous consulter

Je suis votre contact
Florentine FARNIER

Récemment mise à jour

Emplacement

74250
FILLINGES

    Informations

    • Type de locaux : Commerces
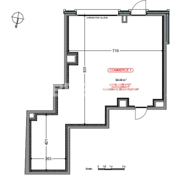
    • Surface totale : 112 m2
    • Divisible : Non
    • Disponibilité : T2 2028
    • Référence : 74.21771
    Les informations sur les risques auxquels ce bien est exposé sont disponibles sur le site Géorisques

    Description

    Nous vous proposons des bureaux et des locaux commerciaux au sein d'un programme neuf.
    Le programme est idéalement situé dans la ZAE de Findrol, à proximité des axes menant vers Annemasse, le Chablais ou La Roche sur Foron.
    Les locaux sont situés au pieds d'immeubles à usage d'habitation. Ils sont répartis en 9 bâtiments.
    Ils sont livrés bruts de béton, fluides en attente, vitrines posées.
    Les stationnements accompagnent les locaux.
    Autres détails

      Autres informations

      Performance énergétique

      • DPE : en attente

      Accessibilité

      • Rez-de-chaussée

      Transports en commun

        À noter

          L’agence

          Ces annonces pourraient vous plaire

          Créez votre compte Axite pour enregistrer et gérer vos favoris, vos alertes immo, et plus encore.

          M

          Nom *
          Prénom *
          Téléphone *
          Email *
          Un message à nous transmettre ? (optionnel)


          Logo CBRE Axite