À vendre : locaux d'activités - TULLINS

Lot de 408 m² d'activités neuf disponible sur Tullins !

Prix

Prix pour la surface totale, soit 408 m2 :
1100 €
HT /m²
448800 €
HT
Honoraires: 3% HT + TVA du montant de la cession à la charge de l'acquéreur

Je suis votre contact
Clément THIEULOY

Emplacement

38210
TULLINS
  • Infos accès : 2 minutes de la D1092 7 minutes de l'A49

Informations

  • Type de locaux : Activites
  • Surface totale : 408 m2
  • Divisible : Non
  • Disponibilité : T2 2027
  • Référence : 38.100758
Les informations sur les risques auxquels ce bien est exposé sont disponibles sur le site Géorisques

Description

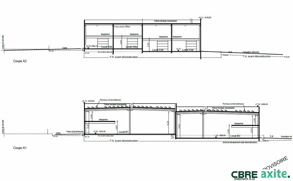
CBRE Axite vous propose une Cellule de 408 m² au sein d'un parc d'activité neuf !
Hauteur : 6.2 m
Porte sectionnelle : 3 m x 3 m
Parkings extérieurs : en foisonnement
306 m² en RDC et 102 m² de mezzanine.
Autres détails
  • Année de construction : 2027

Autres informations

Performance énergétique

  • DPE : en attente

Accessibilité

    Transports en commun

      À noter

      • Porte sectionnelle

      L’agence

      Ces annonces pourraient vous plaire

      Créez votre compte Axite pour enregistrer et gérer vos favoris, vos alertes immo, et plus encore.

      M

      Nom *
      Prénom *
      Téléphone *
      Email *
      Un message à nous transmettre ? (optionnel)


      Logo CBRE Axite