À louer : commerce - RUMILLY

Locaux commerciaux

Loyer

Prix pour la surface totale, soit 805 m2 :
110 €
HTHC /m²/an
7379.17 €
HTHC /mois
88550 €
HTHC /an
Honoraires: 15% HT + TVA du montant du loyer annuel HTHC à la charge du preneur

Je suis votre contact
Florentine FARNIER

Récemment mise à jour

Emplacement

74150
RUMILLY

    Informations

    • Type de locaux : Commerces
    • Surface totale : 805 m2
    • Divisible : Non
    • Disponibilité : Immédiate
    • Référence : 74.20790
    Les informations sur les risques auxquels ce bien est exposé sont disponibles sur le site Géorisques

    Description

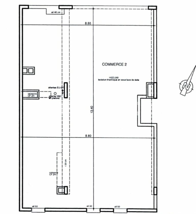
    Nous vous proposons un local commercial disposant d'une surface de vente d'environ 625 m² situé dans la zone commerciale de Rumilly.
    Idéalement situé, il bénéficie d'un parking client en foisonnement.
    Bâtiment en structure métallique disposant d'un showroom et d'une partie réserve avec un accès livraison. Des locaux sociaux viennent compléter ce bien.
    Le local est disponible à la location courte durée.
    Autres détails
    • Précisions :

      une surface de vente de 625m² environ,
      une réserve de 149m² environ
      des bureaux et locaux sociaux de 16m² environ
      hauteur sous plafond 6.79m / 5.34m sous poutre.

    Autres informations

    Performance énergétique

    • DPE : en attente

    Accessibilité

      Transports en commun

        À noter

          L’agence

          Ces annonces pourraient vous plaire

          Créez votre compte Axite pour enregistrer et gérer vos favoris, vos alertes immo, et plus encore.

          M

          Nom *
          Prénom *
          Téléphone *
          Email *
          Un message à nous transmettre ? (optionnel)


          Logo CBRE Axite
          04 81 68 55 47
          Logo CBRE Axite