Commerce en location - LA BALME DE SILLINGY

Locaux commerciaux à la location

Loyer

Prix pour la surface totale, soit 113 m2 :
254.87 €
NET HC /m²/an
2400.03 €
NET HC /mois
28800.31 €
NET HC /an
Honoraires: 15% HT + TVA du montant du loyer annuel NET HC à la charge du preneur

Je suis votre contact
Florentine FARNIER

Récemment mise à jour

Emplacement

74330
LA BALME DE SILLINGY
  • Infos accès : D1508

Informations

  • Type de locaux : Commerces
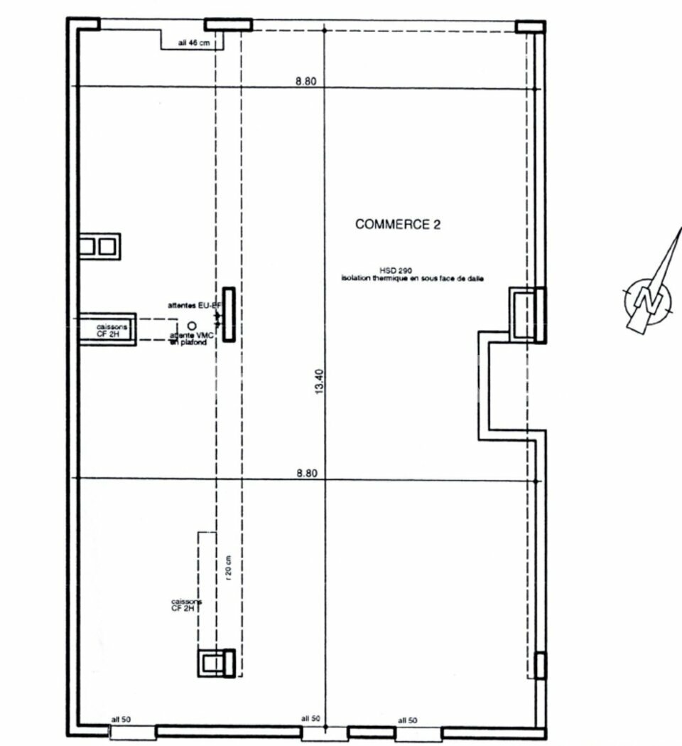
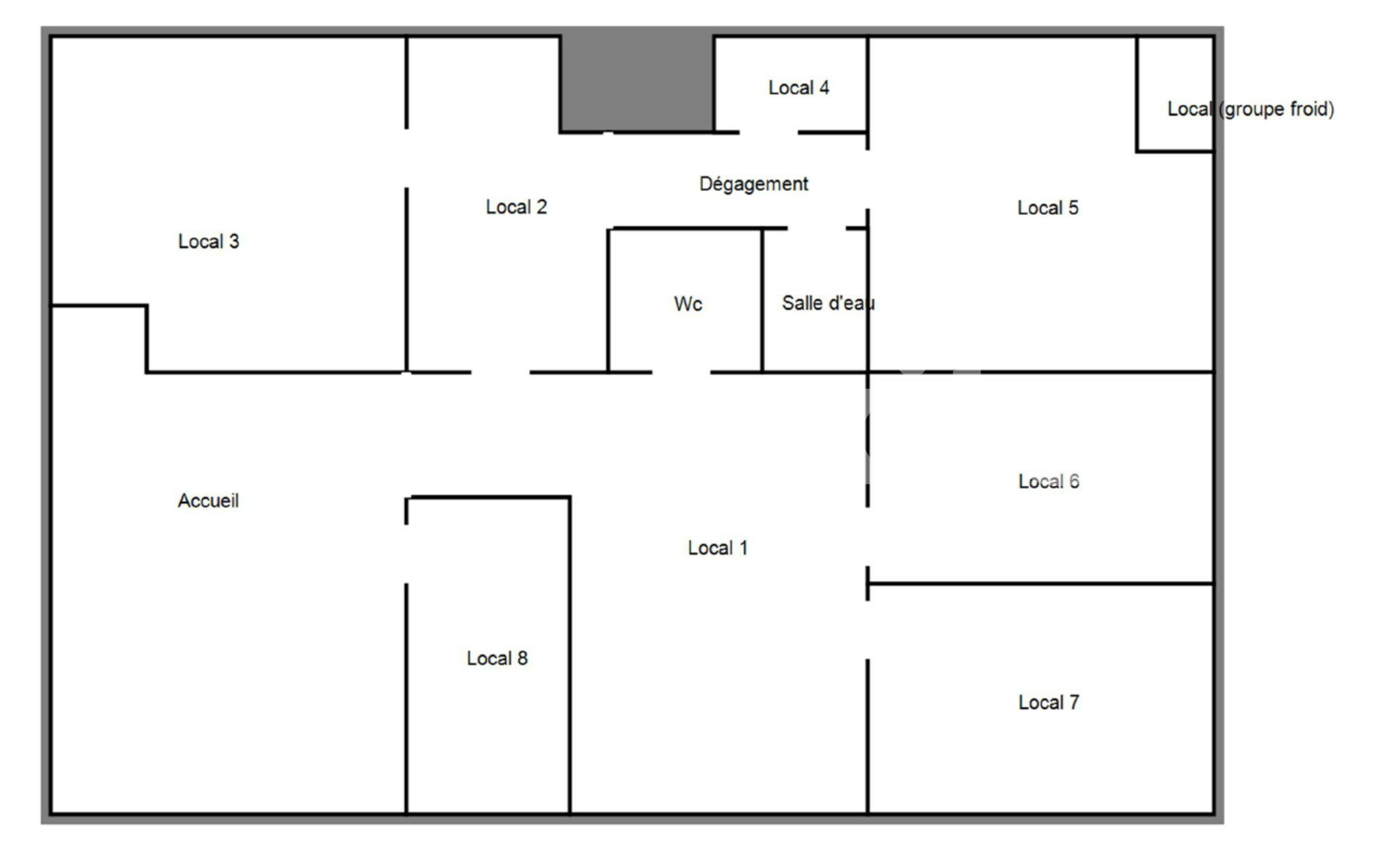
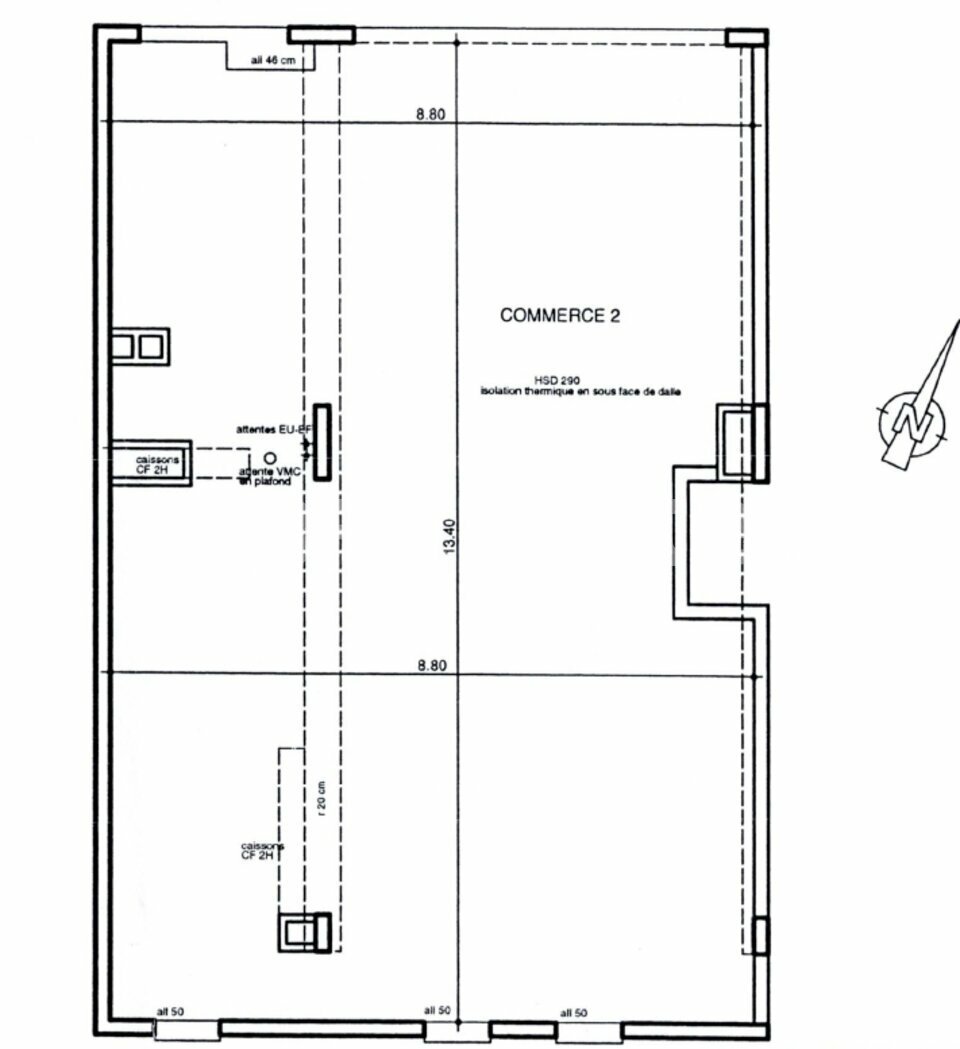
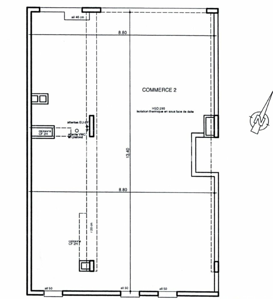
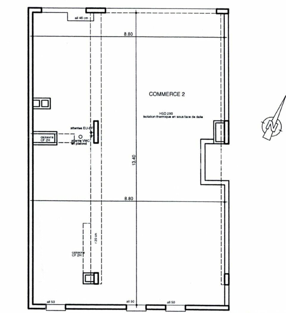
  • Surface totale : 113 m2
  • Divisible : Non
  • Disponibilité : Immédiate
  • Référence : 74.21540
Les informations sur les risques auxquels ce bien est exposé sont disponibles sur le site Géorisques

Description

Nous vous proposons des locaux au rez-de-chaussée d'un immeuble à usage d'habitation, dans une zone dynamique de l'Agglomération d'Annecy.
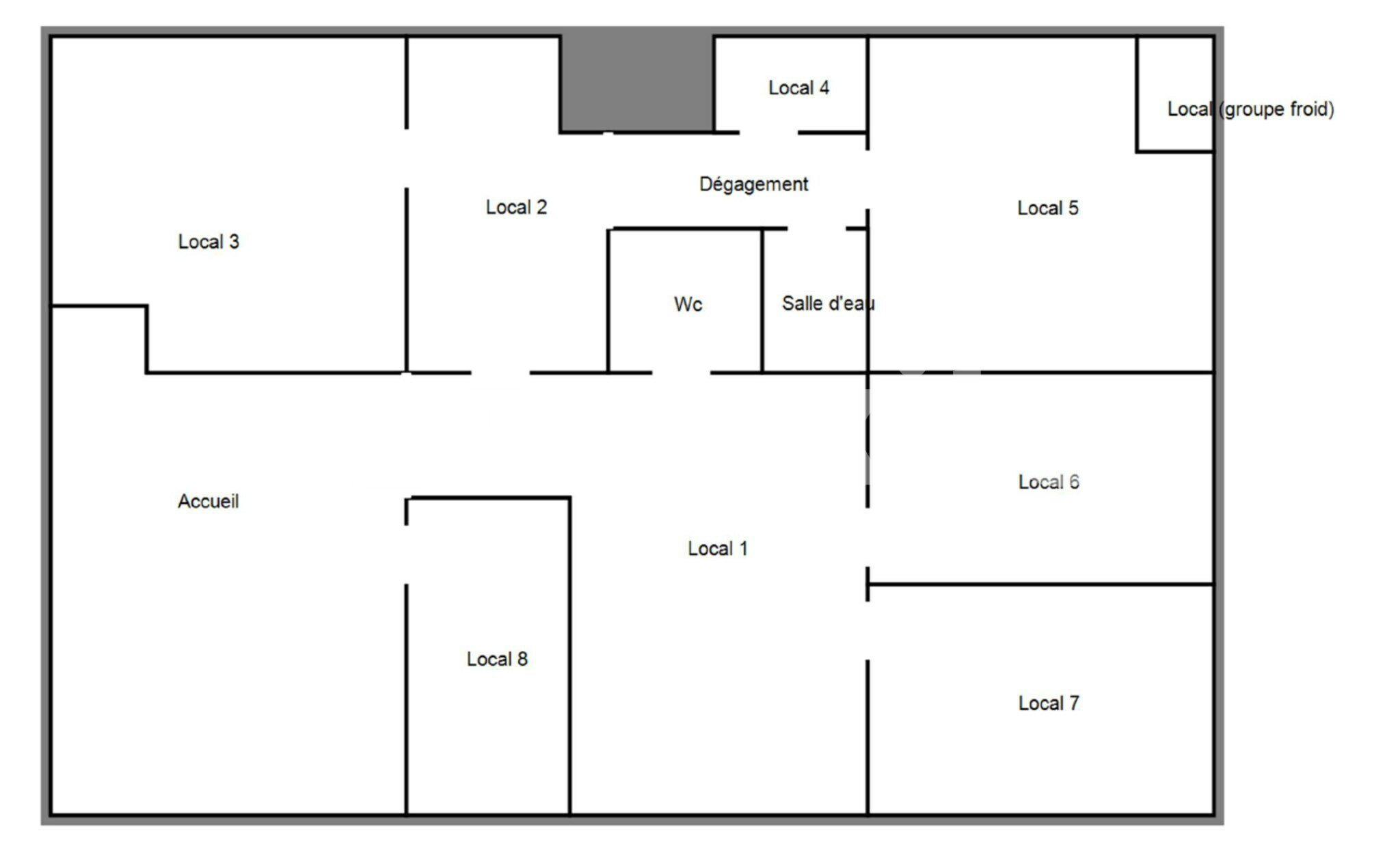
Le bien se compose de :
- un espace accueil
- une salle d'attente
- 5 bureaux
Un point d'eau est présent dans l'ensemble des espaces.
L'aménagement peut être modifié en fonction des besoins.
Le local est traversant ce qui lui confère une belle luminosité.
Des stationnements à proximité facilite l'accès au bien.
Ne convient pas aux activités de restauration.
Autres détails

    Autres informations

    Performance énergétique

    • DPE : en attente

    Accessibilité

      Transports en commun

        À noter

          L’agence

          Ces annonces pourraient vous plaire

          Créez votre compte Axite pour enregistrer et gérer vos favoris, vos alertes immo, et plus encore.

          M

          Nom *
          Prénom *
          Téléphone *
          Email *
          Un message à nous transmettre ? (optionnel)


          Logo CBRE Axite
          04 81 68 55 47
          Logo CBRE Axite