À vendre : commerce - CHARVONNEX

Locaux commerciaux à vendre au sein d'un programme neuf

Prix

BIEN DIVISIBLE :
à partir de 181556.4€ pour 71.25 m2

Prix pour la surface totale, soit 354.1 m2 :
2548.16 €
HT /m²
902303.46 €
HT
Honoraires: Nous consulter

Je suis votre contact
Alicia JACQUET

Récemment mise à jour

Emplacement

74370
CHARVONNEX

    Informations

    • Type de locaux : Commerces
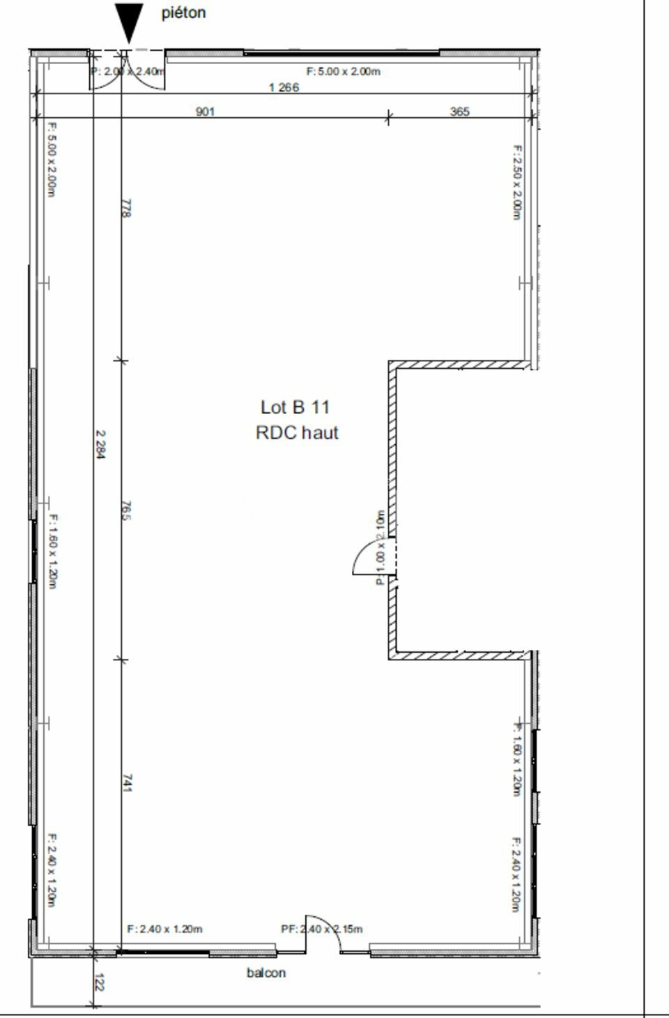
    • Surface totale : 354.1 m2
    • Divisible : Oui - à partir de 71.25m2
    • Disponibilité : 2ème semestre 2027
    • Référence : 74.21339
    Les informations sur les risques auxquels ce bien est exposé sont disponibles sur le site Géorisques

    Description

    Programme Neuf à usage à usage Artisanal, Commercial & Bureaux


    Au sein d'un programme neuf, nous proposons des locaux à usage de commerce d'une superficie comprise entre 71 et 210 m² offrant une excellente visibilité sur un axe passant.
    Ces locaux sont livrés bruts de béton, fluides en attente, hors d'eau et hoirs d'air.
    Des places de parking privatives sont attribuées à chaque lot.
    Autres détails

      Autres informations

      Performance énergétique

      • DPE : en attente

      Accessibilité

        Transports en commun

          À noter

            L’agence

            Ces annonces pourraient vous plaire

            Créez votre compte Axite pour enregistrer et gérer vos favoris, vos alertes immo, et plus encore.

            M

            Nom *
            Prénom *
            Téléphone *
            Email *
            Un message à nous transmettre ? (optionnel)


            Logo CBRE Axite
            04 81 68 55 47
            Logo CBRE Axite