Commerce en location - SEVRIER

Surface commercial à louer - Sevrier

Loyer

Prix pour la surface totale, soit 92 m2 :
210 €
HTHC /m²/an
1610 €
HTHC /mois
19320 €
HTHC /an
Honoraires: 15% HT + TVA du montant du loyer annuel HTHC à la charge du preneur

Je suis votre contact
Florentine FARNIER

Récemment mise à jour

Emplacement

74320
SEVRIER

    Informations

    • Type de locaux : Commerces
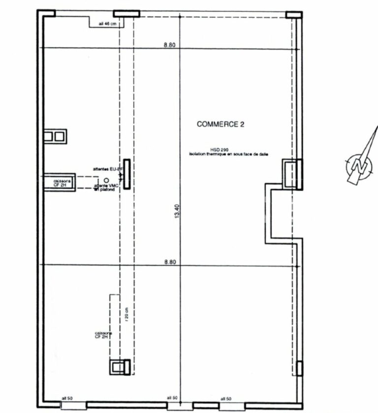
    • Surface totale : 92 m2
    • Divisible : Non
    • Disponibilité : janvier 2026
    • Référence : 74.21837
    Les informations sur les risques auxquels ce bien est exposé sont disponibles sur le site Géorisques

    Description

    La surface se compose d'une surface commercial de 80m² au sol, de 35m² en mezzanine et d'un terrasse privative abritée en devanture du local.
    Les locaux sont proposés semi bruts : isolation, murs blancs, électricité avec boites de dérivation, bloc sanitaire avec lave main, climatisation réversible. Reste à la charge du locataire les sols, distribution électrique, et plomberie.
    Autres détails
    • Précisions :

      3 places de parking + 1 places PMR privatives sont louées avec les locaux, elles sont comprises dans le montant du loyer.

    Autres informations

    Performance énergétique

    • Diagnostic de performance énergétique : 0
      • Valeur : 267
      • Classe : D

    Accessibilité

      Transports en commun

      • Proche arrêt(s) de bus

      À noter

        L’agence

        Ces annonces pourraient vous plaire

        Créez votre compte Axite pour enregistrer et gérer vos favoris, vos alertes immo, et plus encore.

        M

        Nom *
        Prénom *
        Téléphone *
        Email *
        Un message à nous transmettre ? (optionnel)


        Logo CBRE Axite
        04 81 68 55 47
        Logo CBRE Axite